Büro/Praxis, Miete, Am Mellensee
www.immokk.de
Ladengeschäft mit Büro in attraktiver Lage von Mellensee

Ladengeschäft mit Büro in attraktiver Lage von Mellensee

Objektbeschreibung

Zur Vermietung steht ein sehr schönes Ladengeschäft in guter Lage von Mellensee.
Die Gesamtfläche von ca. 116 m² teilt sich in 3 Büro-/ Geschäftsräume, WC und Küche inklusive Einbauküche auf.
Die derzeitige Nutzung war im vorderen Bereich ein Ladengeschäft mit angeschlossenen Büroräumen.
Die Schaufenster sowie die Eingangstüren können in der warmen Jahreszeit mit Markisen beschattet werden.
Für die bessere Sichtbarkeit Ihres Unternehmens können Sie die oberhalb der Schaufenster befindlichen Leuchtreklamen individuell gestalten.
Für das Geschäft stehen 2 -KFZ Stellplätze zur Verfügung.
Eine Bushaltestelle befindet sich in unmittelbarer Nähe.

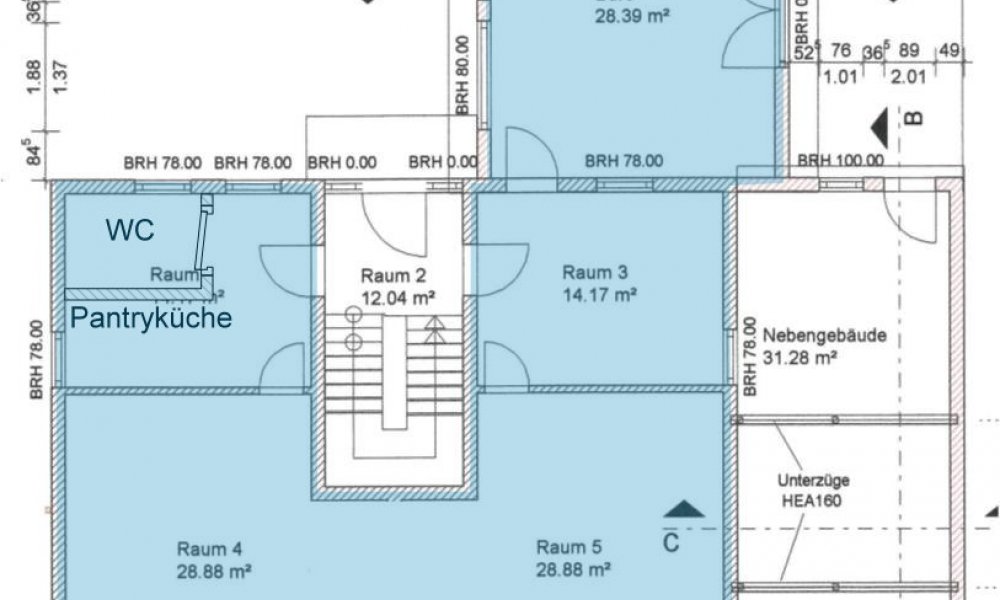
Zur Ansicht ist ein Grundriss mit beigefügt.

Die monatlichen Nebenkosten belaufen sich auf 290 EUR, davon 190 EUR für die Heizkosten und 100 EUR für die Betriebskosten.
Die Kaution beträgt 3 Nettokaltmieten.
Ein Betrieb als Imbiss oder Vollgastronomie ist im Objekt nicht möglich.

Anbieter

Klaus Kühne Immobilien
Schulstraße Saalow 6
15838 Am Mellensee
Tel.: +49 3377 34330
Fax.: +49 3377 343322
info@immokk.de
www.immokk.de

Ladengeschäft mit Büro in attraktiver Lage von Mellensee

Ladengeschäft mit Büro in attraktiver Lage von Mellensee

Preise & Kosten

Nettokaltmiete 1.160,- €
Nebenkosten 290,- €
Heizkosten 190,- €
Mieter-Provision Ja

Größe & Zustand

Ladenfläche 116 m2
Zimmer 3
Zustand Gepflegt
Alt-/Neubau Neubau
Baujahr 1995
Verfügbar ab nach Vereinbarung

Energiepass

Energieverbrauchkennwert
181,8
kWh/(a·m²)

0
200
>400
Gebäudeart Gewerbeimmobilie
Energiepass Art Verbrauch
Gültig bis 15.11.2034
Energieverbrauchkennwert 181,8 kWh/m²a
Mitwarmwasser
Jahrgang Ausgestellt ab dem 01.05.2014
Ausstelldatum 15.11.2024
Primärenergieträger Gas
Stromverbrauchskennwert kWh/(m²·a) 15.00
Heizenergie­verbrauchs­kennwert kWh/(m²·a) 132.00

Ausstattung

Küche Einbauküche

Schaufenster
Markisen
WC
Einbauküche
2-KFZ Stellplätze
Fußbodenheizung und Heizkörper
Glasfaser-Telefonanschluss

Objektbeschreibung

Zur Vermietung steht ein sehr schönes Ladengeschäft in guter Lage von Mellensee.
Die Gesamtfläche von ca. 116 m² teilt sich in 3 Büro-/ Geschäftsräume, WC und Küche inklusive Einbauküche auf.
Die derzeitige Nutzung war im vorderen Bereich ein Ladengeschäft mit angeschlossenen Büroräumen.
Die Schaufenster sowie die Eingangstüren können in der warmen Jahreszeit mit Markisen beschattet werden.
Für die bessere Sichtbarkeit Ihres Unternehmens können Sie die oberhalb der Schaufenster befindlichen Leuchtreklamen individuell gestalten.
Für das Geschäft stehen 2 -KFZ Stellplätze zur Verfügung.
Eine Bushaltestelle befindet sich in unmittelbarer Nähe.

Zur Ansicht ist ein Grundriss mit beigefügt.

Die monatlichen Nebenkosten belaufen sich auf 290 EUR, davon 190 EUR für die Heizkosten und 100 EUR für die Betriebskosten.
Die Kaution beträgt 3 Nettokaltmieten.
Ein Betrieb als Imbiss oder Vollgastronomie ist im Objekt nicht möglich.

Lage

Der Ort Mellensee liegt ca. 30 km südlich von Berlin und gehört als Ortsteil zur Gemeinde Am Mellensee. Durch die Lage am gleichnamigen See bieten der Ort und seine Umgebung eine Vielzahl an Freizeit- und Naherholungsmöglichkeiten. Im angrenzenden Klausdorf findet man alle Dinge des täglichen Bedarfs, wie z.B. ein Einkaufszentrum, die Sparkasse, verschiedene Arztpraxen, ein herrliches Strandbad sowie verschiedene Hotels und Pensionen. Die nächstgelegene Einkaufsmöglichkeit, mit Bäcker, ist ca. 1,4 km entfernt. Busverbindungen bestehen nach Zossen und Luckenwalde, mit Anschluss an die Regionalbahn nach Berlin. Die Grundschulen der Gemeinde befinden sich in Mellensee und Sperenberg. Weiterführende Schulen sind in Dabendorf (Gesamtschule) Rangsdorf (Gymnasium und freie Schule) sowie Wünsdorf und Baruth. Alle Schulen mit ÖPNV-Anbindung. Bis zur Autobahn A 10, Auffahrt Rangsdorf sowie zur B 101, Auffahrt Christinendorf, sind es ca. 17 km.

Sonstiges

Die Provision für den Mieter beträgt 2 Nettokaltmieten zzgl. 19 % MwSt. und ist nach Abschluss des Mietvertrages vom Mieter zu entrichten.

Prüfen Sie bitte das Objekt. Mit weiteren Daten und für Besichtigungen stehen wir Ihnen gern zur Verfügung.
Weitergabe des Objektes nur mit unserer Zustimmung. Bei Zuwiderhandlung haftet der Empfänger für entgangene Provisionen in voller Höhe. Sollte Ihnen das Objekt nicht zusagen und Sie sind an weiteren Angeboten interessiert, so bitten wir Sie höflichst um Kontaktaufnahme. Alle in diesem Angebot enthaltenen Maße, Skizzen, Preis-, Miet- und sonstigen Angaben beruhen auf Angaben des Verkäufers oder Dritten. Von unserer Seite kann daher keine Haftung übernommen werden.
Bitte beachten Sie unsere AGB und den Hinweis auf Ihr Widerrufsrecht.

Bilder

Ladengeschäft mit Büro in attraktiver Lage von Mellensee Ladengeschäft mit Büro in attraktiver Lage von Mellensee Ladengeschäft mit Büro in attraktiver Lage von Mellensee